This project aims to define a new methodology to renovate and reorganize the entrances of the low-rise buildings in Brøndby Strand Parkerne.
To fight against the social difficulties and lack of connection in the area, this proposal offers the possibilities and spaces for people to get together as a way to strengthen neighbourship and encourage community. After restoring the original doors, transforming the interior spaces and materiality, our proposal adds a set of furniture, inspired by the grid of the current architecture. These pieces create a sense of domesticity in the entrances, so that the resident can consider these areas as an extension of their homes. They are also designed to offer common and private storage and also places to share objects, as well as moments.
To fight against the social difficulties and lack of connection in the area, this proposal offers the possibilities and spaces for people to get together as a way to strengthen neighbourship and encourage community. After restoring the original doors, transforming the interior spaces and materiality, our proposal adds a set of furniture, inspired by the grid of the current architecture. These pieces create a sense of domesticity in the entrances, so that the resident can consider these areas as an extension of their homes. They are also designed to offer common and private storage and also places to share objects, as well as moments.
We believe that by bringing life into these in-between spaces, we can create a greater sense of belonging, that can then extend into a stronger and more sustainable community. THRESHOLDS is both calming and fun, its design is considerate of the residents and of the architecture, but most importantly it is full of possibilities and hope.
with Febe Gezelius

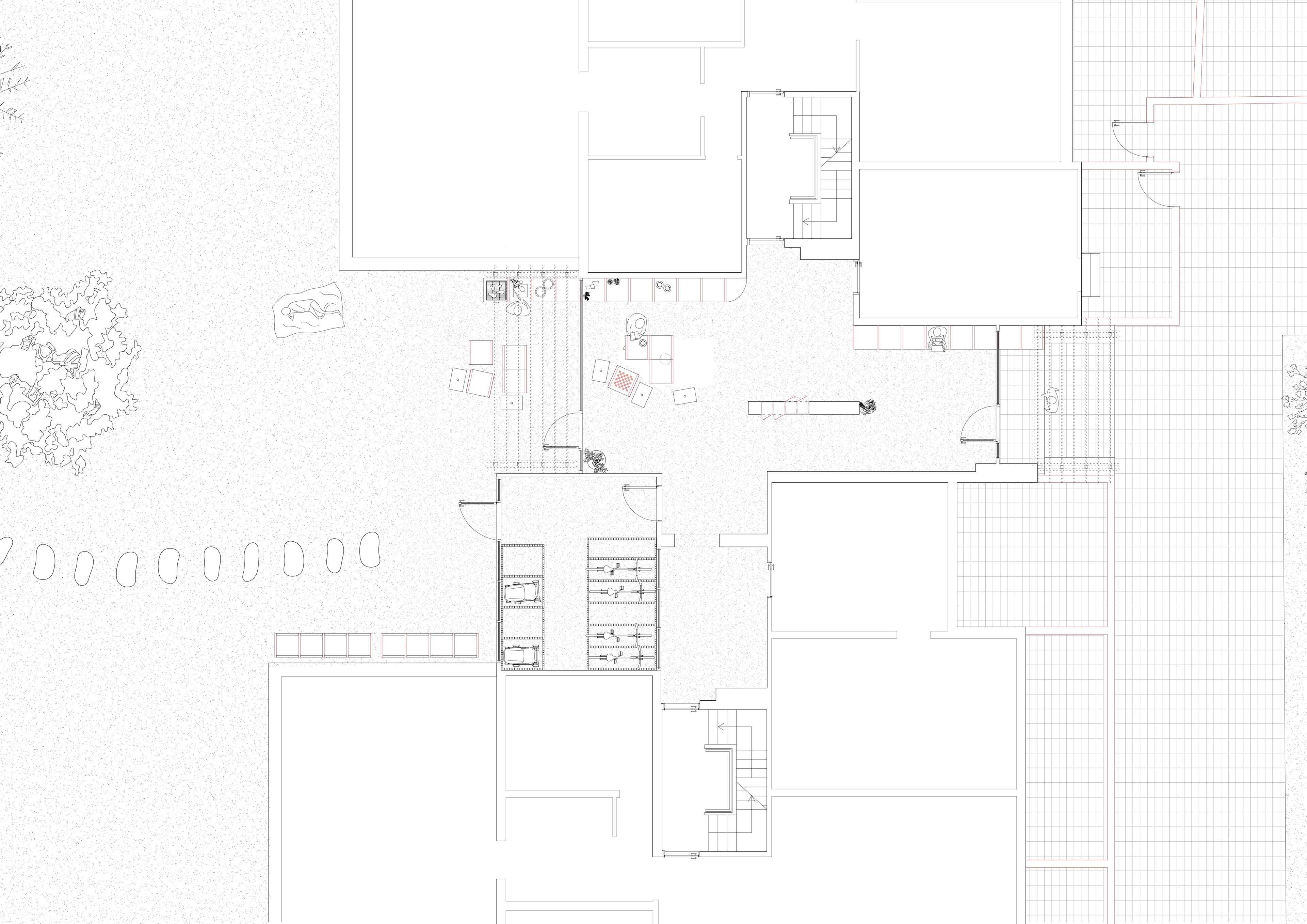
analysis of courtyard organisation

analysis of courtyard infrastructures

analysis of entrance passages

analysis of entrance usage

proposal of organisation

methodology of project


section combining entire furniture collection

entrance bench

postboxes integrated in existing wall

flexible table

stools



2023 - Royal Danish Academy
Supervisor : Carmen Garcia Sanchez