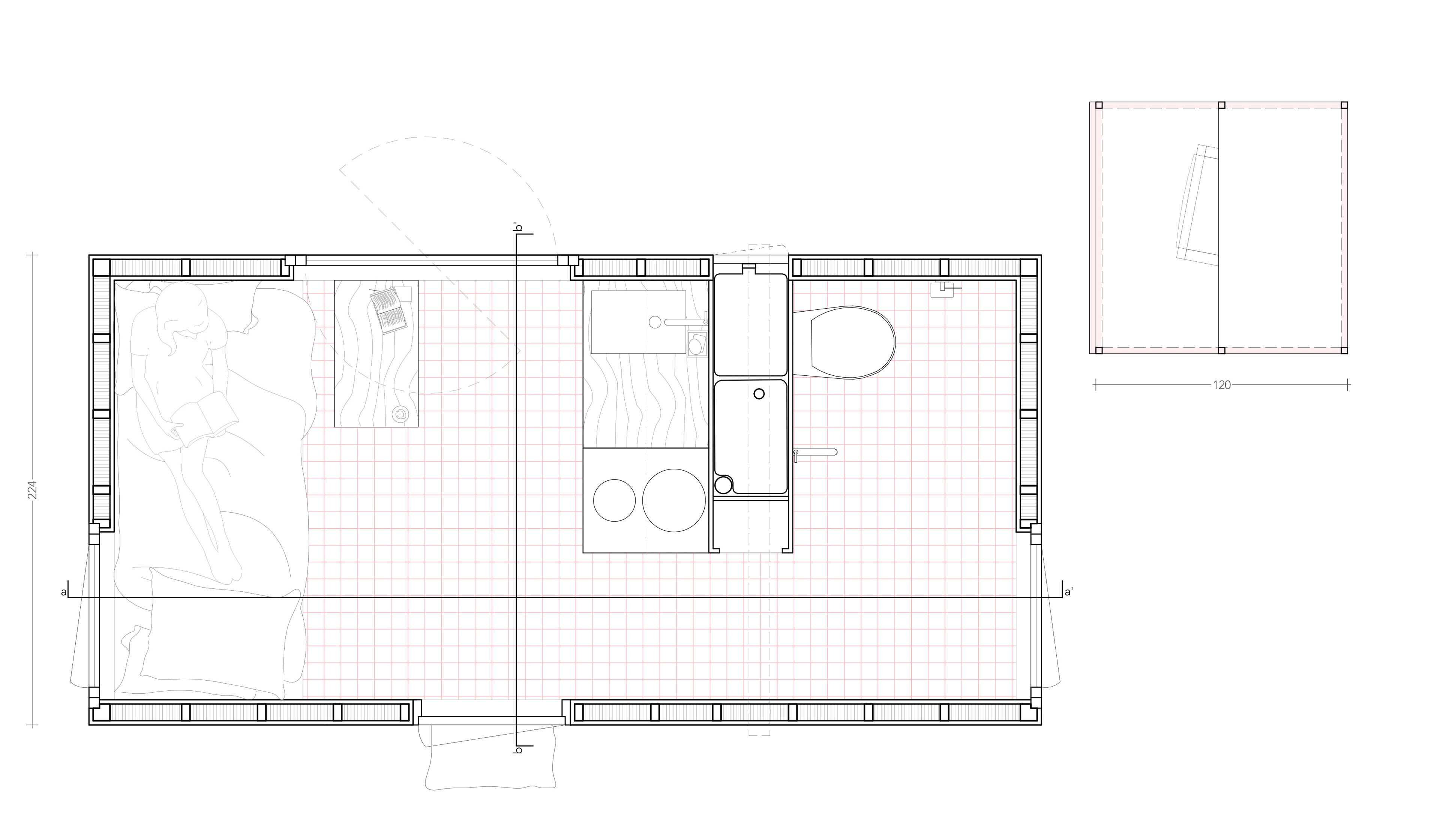
This cabin is destined for writers or any creative person looking for inspiration and peace in proximity to nature. It consists of two elements: a shelter and a mobile office which both house different functions, but both reflect a tender atmosphere due to materiality and simplicity.
The shelter is a space to rest and unwind. Its facilities remain simple and independant;
the single-slope roof allows rainwater to be collected. A wood-burning cooker, located in the centre of the space, heats the room as well as the water.
The mobile office, a light metallic structure, provides the writer with the opportunity to choose a new environment each day for inspiration.










2022
professor : Simon Husslein, assisted by Damien Greder