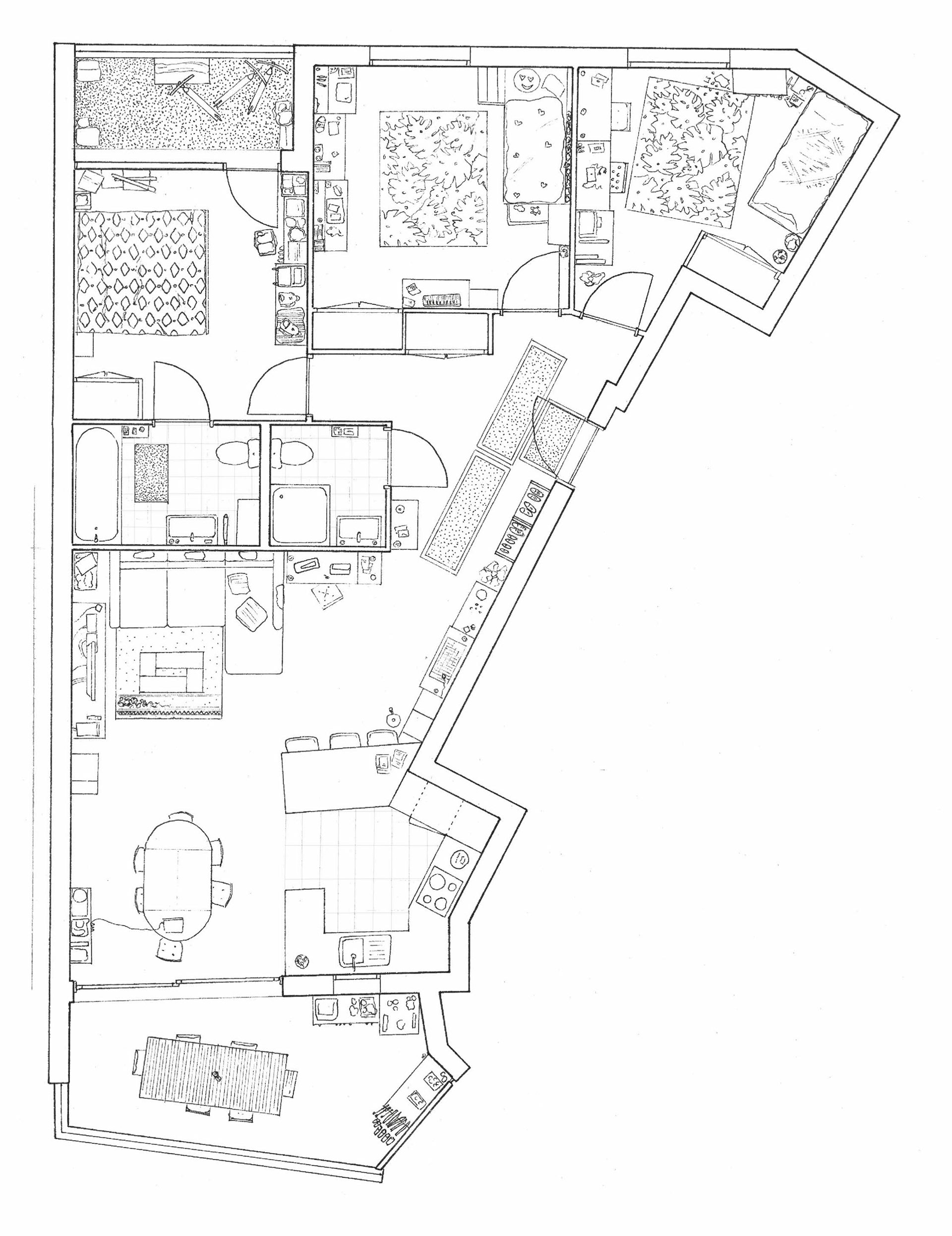
This proposal follows the domotopie research project in collaboration with LaSur-Epfl. After drawing "Sylvie and Antun’s" appartment and analysing their familiy's relationship with it, I reimagined the layout of the apartment to suit their needs better. Most particularily their desire for transparency and connected-ness.
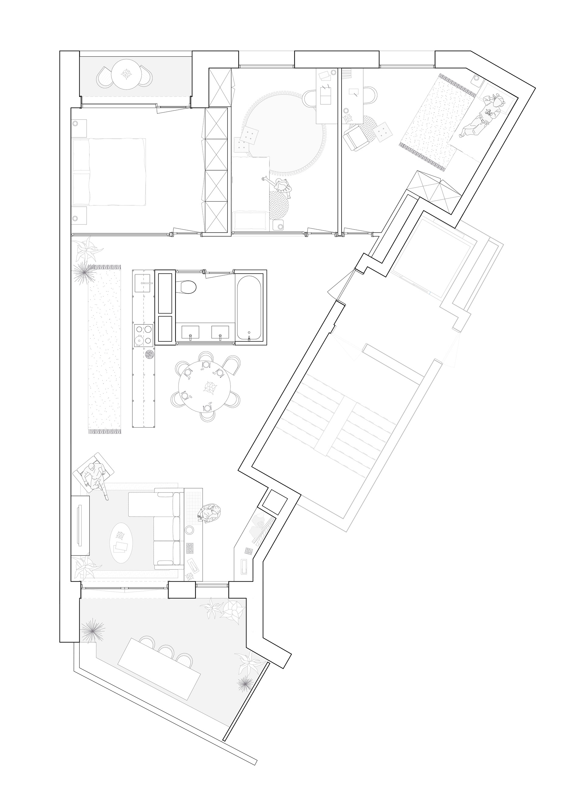
The project is built around the central object constructed in four parts with each their materiality but all the same colour, softening the original odd shape of the apartment.







corridor between the ilot and bedrooms

view of the ilot from the living room

built-in 2 floor beds for the girls' bedroom
2021
tutor : Line Fontana, assisted by Paule Perron